Frontansicht
Seitenansicht
Eingang
Ausstellung
Austellung
Ausstellung
Umkleide
Ausstellung
Ausstellung
Ladenlokal
Ihr Ansprechpartner
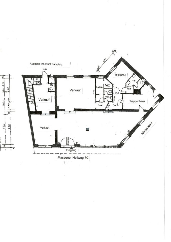
Diese angebotene Laden-oder Bürofläche befindet sich im Erdgeschoss eines Mehrfamilienhauses. Sie ist ideal für ein Unternehmen, das auf eine geräumige und flexible Gestaltung angewiesen ist. Mit einer Fläche von ca 143 qm bietet sie ausreichend Platz für verschiedene Nutzungsmöglichkeiten.
Besonders attraktiv ist die Lage im Erdgeschoss, da sie eine gute Sichtbarkeit und Erreichbarkeit für Laufkundschaft bietet. Die Passantenfrequenz vor der Tür sorgt für eine gute Werbewirkung und potenzielle Kunden.
Die Gestaltung der Fläche ist flexibel und kann den individuellen Bedürfnissen des Unternehmens angepasst werden. Ob als Verkaufsraum, Büro oder Praxis, hier ist alles möglich.
Nutzen Sie die Chance, Ihre Geschäftsidee in dieser Lage umzusetzen und profitieren Sie von der flexiblen Gestaltungsmöglichkeit. Vereinbaren Sie noch heute einen Besichtigungstermin und überzeugen Sie sich selbst von den Vorzügen dieser Laden- oder Bürofläche im Erdgeschoss.
Direkt in der Ortsmitte von Unna-Massen bieten wir Ihnen dieses Geschäft zur übernahme. Die Räumlichkeiten befindet sich direkt an der Einkaufsstraße des Unnaer Vorortes. Eine gute Verkehrsanbindung in alle Richtungen ist gegeben. Die S-Bahnhaltestelle ist ebenfalls nur wenige Minuten entfernt. Für Kunden stehen öffentliche Kurzzeitparkplätze am Massener Hellweg zur Verfügung.
Massener Hellweg 30, 59427 Unna
„*“ zeigt erforderliche Felder an
Mit wenigen Daten können Sie bereits hier den besten Zinssatz und ihre individuelle Rate berechnen. Eine geprüfte Finanzierung erhöht Ihre Chancen, schnell und erfolgreich für dieses Objekt agieren zu können.
Sie sehen gerade einen Platzhalterinhalt von Standard. Um auf den eigentlichen Inhalt zuzugreifen, klicken Sie auf den Button unten. Bitte beachten Sie, dass dabei Daten an Drittanbieter weitergegeben werden.
Weitere InformationenSie müssen den Inhalt von reCAPTCHA laden, um das Formular abzuschicken. Bitte beachten Sie, dass dabei Daten mit Drittanbietern ausgetauscht werden.
Mehr InformationenSie sehen gerade einen Platzhalterinhalt von Facebook. Um auf den eigentlichen Inhalt zuzugreifen, klicken Sie auf die Schaltfläche unten. Bitte beachten Sie, dass dabei Daten an Drittanbieter weitergegeben werden.
Mehr InformationenSie müssen den Inhalt von reCAPTCHA laden, um das Formular abzuschicken. Bitte beachten Sie, dass dabei Daten mit Drittanbietern ausgetauscht werden.
Mehr InformationenSie sehen gerade einen Platzhalterinhalt von Instagram. Um auf den eigentlichen Inhalt zuzugreifen, klicken Sie auf die Schaltfläche unten. Bitte beachten Sie, dass dabei Daten an Drittanbieter weitergegeben werden.
Mehr InformationenSie sehen gerade einen Platzhalterinhalt von X. Um auf den eigentlichen Inhalt zuzugreifen, klicken Sie auf die Schaltfläche unten. Bitte beachten Sie, dass dabei Daten an Drittanbieter weitergegeben werden.
Mehr Informationen