Ansicht 1
Ansicht 2
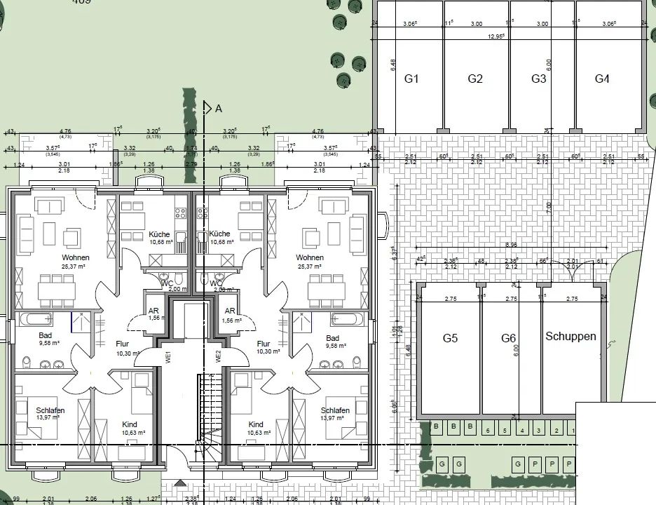
Erdgeschoss und Grundstück
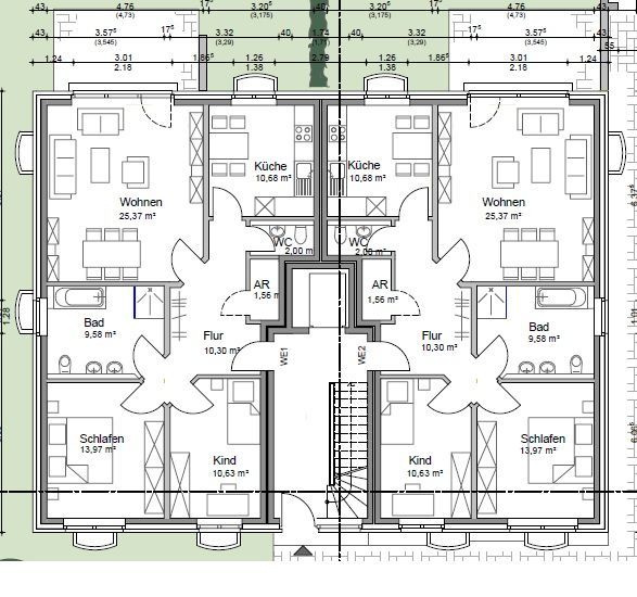
Erdgeschoss
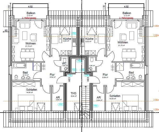
Obergeschoss
Dachgeschoss
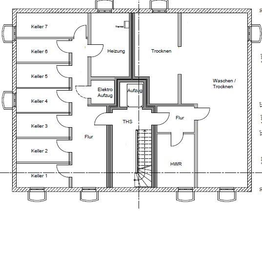
Kellergeschoss
Ihr Ansprechpartner
Gebaut wird hier ein 6 Familienhaus mit Vollkeller und 6 Garagen. Die zwei Wohnungen im EG sind mit je 84,10m², die beiden Wohnungen im ersten OG sind mit je ca. 85,79 m² Wohnfläche geplant. Die beiden Wohnungen im DG sind je mit ca. 67,21m² geplant. Alle Wohnungen sind derzeit mit drei Zimmern, Vollbad und Balkon bzw. Terrasse im EG geplant. Somit ergibt sich eine gute Vermarktungsmöglichkeit bei der Vermietung. Es wird ein Vollkeller errichtet in dem die Haustechnik eingebaut wird. Des Weiteren sind hier 6 Mieterkeller ein Wasch- und ein Trockenbereich für die Wäsche eingeplant. Das Gebäude wird über eine Luftwärmepumpe beheizt. Die Außenanlage wird als Grünanlage fertiggestellt.
Heeren liegt im Südosten der Stadt Kamen, Werve ist der direkte Nachbarort und wird nur durch den Mühlbach von Heeren getrennt. Über Landesstraßen erreichen Sie die nahgelegenen Städte Kamen, Dortmund und Unna schnell und unkompliziert.
In Heeren-Werve sind die Grundschule, Sporteinrichtungen, Ärzte, Banken und Einkaufsmöglichkeiten nicht weit entfernt vorhanden.
In den Naturgebieten rund um die Seseke und den Mühlbach bieten sich Spaziergänge und Radtouren an. Früher waren beide Bäche mit Betonschalen ausgelegte Kanäle. Durch einen ökologischen Umbau haben beide Bäche einen Teil ihrer naturnahen Gestalt zurückbekommen.
Die frühbarocke Wasserschloss-Anlage Haus Heeren ist einer der letzten Vertreter der adeligen Häuser im Kreis Unna. Hier können Sie sogar standesamtlich heiraten.
59174 Kamen–Heeren / Heeren-Werve
„*“ zeigt erforderliche Felder an
Mit wenigen Daten können Sie bereits hier den besten Zinssatz und ihre individuelle Rate berechnen. Eine geprüfte Finanzierung erhöht Ihre Chancen, schnell und erfolgreich für dieses Objekt agieren zu können.
Sie sehen gerade einen Platzhalterinhalt von Standard. Um auf den eigentlichen Inhalt zuzugreifen, klicken Sie auf den Button unten. Bitte beachten Sie, dass dabei Daten an Drittanbieter weitergegeben werden.
Weitere InformationenSie müssen den Inhalt von reCAPTCHA laden, um das Formular abzuschicken. Bitte beachten Sie, dass dabei Daten mit Drittanbietern ausgetauscht werden.
Mehr InformationenSie sehen gerade einen Platzhalterinhalt von Facebook. Um auf den eigentlichen Inhalt zuzugreifen, klicken Sie auf die Schaltfläche unten. Bitte beachten Sie, dass dabei Daten an Drittanbieter weitergegeben werden.
Mehr InformationenSie müssen den Inhalt von reCAPTCHA laden, um das Formular abzuschicken. Bitte beachten Sie, dass dabei Daten mit Drittanbietern ausgetauscht werden.
Mehr InformationenSie sehen gerade einen Platzhalterinhalt von Instagram. Um auf den eigentlichen Inhalt zuzugreifen, klicken Sie auf die Schaltfläche unten. Bitte beachten Sie, dass dabei Daten an Drittanbieter weitergegeben werden.
Mehr InformationenSie sehen gerade einen Platzhalterinhalt von X. Um auf den eigentlichen Inhalt zuzugreifen, klicken Sie auf die Schaltfläche unten. Bitte beachten Sie, dass dabei Daten an Drittanbieter weitergegeben werden.
Mehr Informationen