Issum-Sevelen: Gewerbehalle
Seitenansicht und Freiflächen
Zufahrt
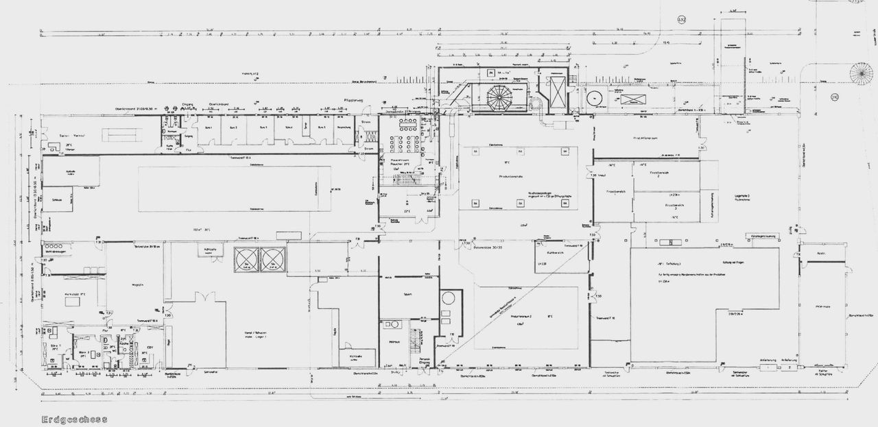
Gewerbehallen
Personaleingang
Gewerbehallen
Gewerbehallen
Zugang Bürobereich
Produktionsflächen
Produktionsflächen
Produktionsflächen
Magazin
Lager
Lager
Tiefkühlhaus
Lager
Sanitärbereich
Zugang zu Sozialräumen
Büro
Pausenraum
Flur
Sanitäranlagen
Büro
Ihr Ansprechpartner
Zum Kauf bieten wir Ihnen eine Gewerbeimmobilie auf einem ca. 14.667 m² großen Grundstück, die mit einer Gesamtfläche von 6.550 m² vielseitige Nutzungsmöglichkeiten bietet. Auf einem ehemaligen Bundeswehrgelände, erbaut im Jahr 1954, wurde sie seit 2000 auf Grund von Umnutzungen laufend modernisiert, aktuell ganz ohne Investitionsstau.
Die Stahlrahmenkonstruktion der Halle bietet Flexibilität: Die Flächen sind individuell teilbar und passen sich spezifischen Anforderungen an. Die Gewerbehalle dient aktuell als Produktionshalle für Backwaren. Die technische Ausstattung entspricht den heutigen Anforderungen einer modernen Gewerbehalle, z.B. RWA-Anlage, Raumluftanlage, Starkstrom, Schnelllauftore, Hochregallager, etc.
Sektionaltore ermöglichen den einfachen An- und Abtransport von Produkten. Darüber hinaus stehen Ihnen großzügige Büro- und Mitarbeiterräume sowie Aufenthaltsräume zur Verfügung, die eine angenehme Arbeitsatmosphäre schaffen.
Außerdem bietet ein Tiefkühlhaus optimale Bedingungen für die Lagerung von temperaturempfindlichen Produkten. Das Grundstück ist teilweise als Bauland ausgewiesen, was Ihnen die Möglichkeit eröffnet, bei Bedarf Anbauten zu realisieren und die Immobilie weiterzuentwickeln.
Die Halle ist bis zum 31.03.2027 vermietet. Die Verlängerungsoption ermöglicht dem Mieter den bestehenden Vertrag zu verlängern.
Nettokaltmiete 19.250,- EUR/mtl.
Jahresrohertrag 231.000,- EUR/p.a.
Indexmiete
Vermietung Teilfläche Parkplatz 280,- EUR/mtl.
Jahresrohertrag 3.360,- EUR/p.a.
Diese Immobilie bietet nicht nur eine gute Rendite, sondern auch die Perspektive einer späteren Eigennutzung.
Nutzen Sie die Chance, in eine Gewerbeimmobilie zu investieren, die durch ihre Ausstattung und Größe überzeugt. Hier finden Sie nicht nur eine Produktionsfläche, sondern ein vielseitiges Raumkonzept, das zahlreiche Nutzungsmöglichkeiten eröffnet. Lassen Sie sich diese Gelegenheit nicht entgehen!
– 35 PKW-Stellplätze
– zusätzliche Freiflächen
– RWA-Anlage
– Raumluftanlage
– Brandschutztüren
– Schnelllauftore
– Frosterzellen und Kühlräume
– Trafoanlage mit NSHV
– Ölzentralheizung mit Kunststofftanks
– Stahlrahmenkonstruktion
– Lichtkuppeln
Die Gemeinde Issum liegt am Niederrhein, den manche auch als grünen Westen Deutschlands bezeichnen. Issum selbst ist rund 20 Kilometer von der niederländischen Grenze entfernt. Verkehrstechnisch hat Issum eine hervorragende Anbindung an das Autobahnnetz des Ruhrgebietes, der Niederlande und schnellen Zugang zu gleich zwei Flughäfen: in Weeze und in Düsseldorf.
A57 (10 Autominuten entfernt), B58, B510, B9, Airport Niederrhein (30 min.), Airport Düsseldorf (37 min.).
Linie SB 30 Issum – Sevelen – Kamp-Lintfort – Moers DU
Linie 31 Geldern Issum Sevelen Rheurdt – Aldekerk
6,4 km zum Bahnhof Nieukerk (RE10 Niers-Express, Kleve-Krefeld-Düsseldorf)
47661 Issum–Sevelen
„*“ zeigt erforderliche Felder an
Mit wenigen Daten können Sie bereits hier den besten Zinssatz und ihre individuelle Rate berechnen. Eine geprüfte Finanzierung erhöht Ihre Chancen, schnell und erfolgreich für dieses Objekt agieren zu können.
Sie sehen gerade einen Platzhalterinhalt von Standard. Um auf den eigentlichen Inhalt zuzugreifen, klicken Sie auf den Button unten. Bitte beachten Sie, dass dabei Daten an Drittanbieter weitergegeben werden.
Weitere InformationenSie müssen den Inhalt von reCAPTCHA laden, um das Formular abzuschicken. Bitte beachten Sie, dass dabei Daten mit Drittanbietern ausgetauscht werden.
Mehr InformationenSie sehen gerade einen Platzhalterinhalt von Facebook. Um auf den eigentlichen Inhalt zuzugreifen, klicken Sie auf die Schaltfläche unten. Bitte beachten Sie, dass dabei Daten an Drittanbieter weitergegeben werden.
Mehr InformationenSie müssen den Inhalt von reCAPTCHA laden, um das Formular abzuschicken. Bitte beachten Sie, dass dabei Daten mit Drittanbietern ausgetauscht werden.
Mehr InformationenSie sehen gerade einen Platzhalterinhalt von Instagram. Um auf den eigentlichen Inhalt zuzugreifen, klicken Sie auf die Schaltfläche unten. Bitte beachten Sie, dass dabei Daten an Drittanbieter weitergegeben werden.
Mehr InformationenSie sehen gerade einen Platzhalterinhalt von X. Um auf den eigentlichen Inhalt zuzugreifen, klicken Sie auf die Schaltfläche unten. Bitte beachten Sie, dass dabei Daten an Drittanbieter weitergegeben werden.
Mehr Informationen