Außenansicht
Außenansicht
Gartenansicht
Außenansicht
Erdgeschoss
Obergeschoss
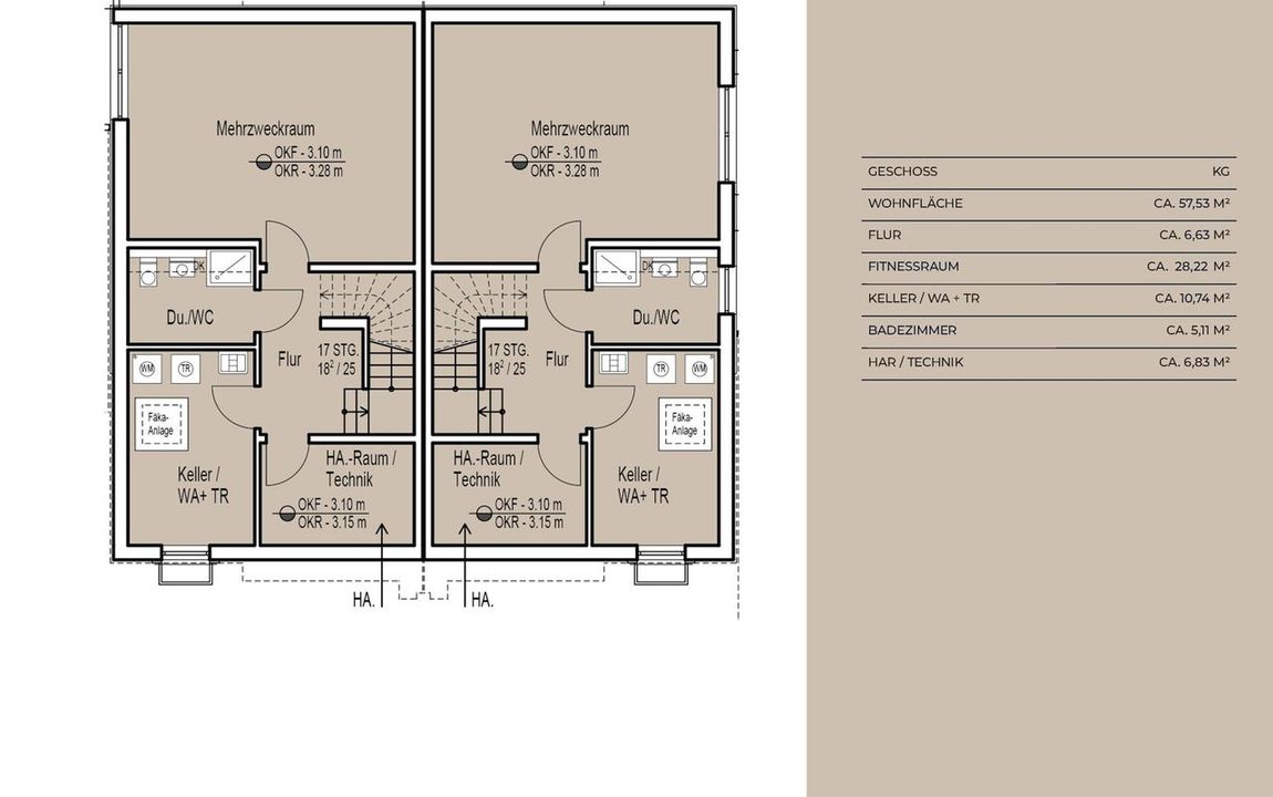
Kellergeschoss
Lageplan
Lageplan Mikrolage
Ihr Ansprechpartner
In begehrter Wohnlage von Lohmar‑Birk entstehen moderne Doppelhaushälften in hochwertiger, massiver Bauweise. Das Neubauprojekt verfolgt das Ziel, zeitgemäßen und energieeffizienten Wohnraum für Familien, Paare und anspruchsvolle Homeoffice‑Nutzer zu schaffen. Klare Linien, durchdachte Grundrisse und eine gehobene Ausstattung prägen den überzeugenden Gesamteindruck. Die Häuser werden schlüsselfertig errichtet und erfüllen sämtliche aktuellen Anforderungen des Gebäudeenergiegesetzes (GEG). Jede Einheit umfasst rund 181 m² Fläche auf einem etwa 270 m² großen Grundstück. Die Fertigstellung ist für Dezember 2026 geplant.
Kaufpreiszahlung erst bei Fertigstellung!
Die angebotenen Doppelhaushälften verfügen über insgesamt 6 großzügige Zimmer, darunter helle Wohn‑ und Schlafbereiche, zwei moderne Badezimmer sowie ein zusätzliches Gäste‑WC. Die intelligente Raumaufteilung bietet idealen Wohnkomfort – sowohl für Familien als auch für Paare mit hohem Anspruch an Wohn‑ und Arbeitsbereiche.
Das Gebäude entsteht in massiver Bauweise und erfüllt sämtliche heutigen technischen und energetischen Standards. Die Wärmeversorgung erfolgt über eine moderne, elektrisch betriebene Luft‑/Wasser‑Wärmepumpe in Kombination mit einer Fußbodenheizung in allen Wohnräumen – für besonders effizientes und nachhaltiges Wohnen. Ergänzend ist eine Photovoltaikanlage mit 7,2 kWp vorgesehen.
Ein besonderes Highlight stellt die Vollunterkellerung dar, die wertvolle Nutz‑ und Abstellflächen schafft. Die integrierte Garage sorgt zudem für zusätzlichen Stauraum.
Die Ausstattung überzeugt durch hochwertige Materialien und Markenprodukte, unter anderem:
– 3-fach verglaste Kunststofffenster mit elektrischen Rollläden bzw. Raffstores
– Aluminium-Haustür mit Mehrfachverriegelung
– Bodengleiche Duschen, Sanitärobjekte von Villeroy & Boch sowie Armaturen von Hansgrohe
– Netzwerkverkabelung (CAT 7) in den Wohnräumen
– Dachbegrünung als nachhaltiges Gestaltungselement
Die Innenausstattung bietet darüber hinaus individuelle Gestaltungsspielräume: Malerarbeiten sowie Bodenbeläge außerhalb der Badezimmer können in Eigenleistung ausgeführt werden. Auch die Gestaltung der Außenanlagen bleibt den zukünftigen Eigentümern vorbehalten.
Eine detaillierte Bau- und Leistungsbeschreibung liegt vor und unterstreicht den hohen Qualitätsanspruch dieses Neubauprojekts. Das Doppelhaus verbindet moderne Architektur, nachhaltige Technik und exklusiven Wohnkomfort in einer der gefragtesten Lagen von Lohmar‑Birk – ideal für Selbstnutzer und Kapitalanleger.
Bitte beachten Sie: Die im Exposé angegebene Wohnfläche von 156 m² umfasst auch den Fitnessraum, die Dusche und den Flur im Kellergeschoss. Diese Bereiche sind offiziell als Nutzflächen einzuordnen.
– Erstbezug
– energieeffiziente Wärmepumpe
– Fußbodenheizung mit Raumthermostatregelung
– Handtuchheizkörper in den Bädern
– Sanitärgegenstände von Villeroy & Boch
– elektrische Rollläden
– Fenster mit 3-fach Wärmeschutzverglasung
– Haustüre mit 3-fach Verglasung mit Verbundsicherheitsglas und 3-fach Verrieglung
– großflächige Terrasse
Das Doppelhaus befindet sich in Lohmar-Birk im Rhein-Sieg-Kreis und bietet eine naturnahe Umgebung. Die Lage zeichnet sich durch eine gute lokale Infrastruktur mit Einkaufsmöglichkeiten für den täglichen Bedarf, Ärzten und Schulen aus.
Eine hervorragende Anbindung an den öffentlichen Nahverkehr mit Buslinien zu umliegenden Städten und Bahnhöfen ist gegeben. Die Nähe zu größeren Städten wie Köln und Bonn gewährleistet zudem einen einfachen Zugang zu Arbeitsplätzen und kulturellen Angeboten.
53797 Lohmar / Birk
„*“ zeigt erforderliche Felder an
Mit wenigen Daten können Sie bereits hier den besten Zinssatz und ihre individuelle Rate berechnen. Eine geprüfte Finanzierung erhöht Ihre Chancen, schnell und erfolgreich für dieses Objekt agieren zu können.
Sie sehen gerade einen Platzhalterinhalt von Standard. Um auf den eigentlichen Inhalt zuzugreifen, klicken Sie auf den Button unten. Bitte beachten Sie, dass dabei Daten an Drittanbieter weitergegeben werden.
Weitere InformationenSie müssen den Inhalt von reCAPTCHA laden, um das Formular abzuschicken. Bitte beachten Sie, dass dabei Daten mit Drittanbietern ausgetauscht werden.
Mehr InformationenSie sehen gerade einen Platzhalterinhalt von Facebook. Um auf den eigentlichen Inhalt zuzugreifen, klicken Sie auf die Schaltfläche unten. Bitte beachten Sie, dass dabei Daten an Drittanbieter weitergegeben werden.
Mehr InformationenSie müssen den Inhalt von reCAPTCHA laden, um das Formular abzuschicken. Bitte beachten Sie, dass dabei Daten mit Drittanbietern ausgetauscht werden.
Mehr InformationenSie sehen gerade einen Platzhalterinhalt von Instagram. Um auf den eigentlichen Inhalt zuzugreifen, klicken Sie auf die Schaltfläche unten. Bitte beachten Sie, dass dabei Daten an Drittanbieter weitergegeben werden.
Mehr InformationenSie sehen gerade einen Platzhalterinhalt von X. Um auf den eigentlichen Inhalt zuzugreifen, klicken Sie auf die Schaltfläche unten. Bitte beachten Sie, dass dabei Daten an Drittanbieter weitergegeben werden.
Mehr Informationen