Balkon
Küche
Wohnbereich
Wohnbereich
Bad 1
Bad 1
Schlafzimmer
Aufstieg zur Galerie
Home-Office-Bereich
Schlafzimmer
Bad 2
Bad 2
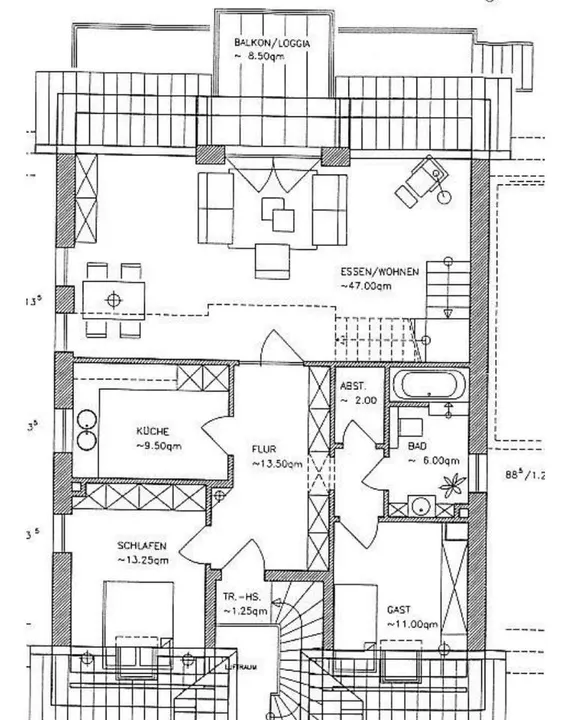
Grundriss 1. OG
Grundriss 2.OG
Ihr Ansprechpartner
Die hier angebotene 5-Zimmer-Wohnung befindet sich im 1. und 2. OG eines sehr gepflegten Dreiparteienhauses in ruhiger Lage von Ratingen-Homberg. Ca. 130 m² verteilen sich über zwei Ebenen. Auf der ersten Ebene befinden sich zwei Schlafzimmer, das erste der beiden Badezimmer, die Küche, der schöne Sonnenbalkon und der großzügige Wohn-Essbereich.
Auf der zweiten Ebene finden Sie zwei weitere flexibel nutzbare Zimmer, einen Durchgangsraum und das zweite Badezimmer.
Für Stauraum steht Ihnen ein Abstellraum innerhalb der Wohnung und etwas Platz im Gemeinschaftskeller zur Verfügung.
Ihre Waschmaschine und den Trockner können Sie in der Gemeinschaftswaschküche platzieren.
Zusätzlich können Sie noch eine Garage (70,- EUR) zum Abstellen Ihres Autos anmieten.
Energieausweis: Verbrauchsausweis gültig von: 07.08.2024, Endenergieverbrauch Wärme: 115 kWh/(m²a) inklusive Warmwasser, Wesentliche Energieträger Heizung: Befeuerung Gas, Energieeffizienzklasse: D, Baujahr: 2001
Kostenaufstellung: 1.625,- EUR Kaltmiete zzgl. 375,- EUR Nebenkosten (inkl. Heizung) zzgl. 70,- EUR Garage= 2.070,- EUR Gesamtmiete
BITTE LESEN:
Haben Sie die Lage für sich geprüft und erfüllen die nachfolgenden Kriterien des Eigentümers? Dann senden Sie uns gerne vorab eine schriftliche Anfrage.
– Ein Kündigungsverzicht von 2 Jahren wird vorausgesetzt
– Sie haben ein eigenes, solides Einkommen
– Der Einzug ist mit max. 4 Personen möglich
Hier einige Ausstattungsmerkmale aufgeführt:
– Rollladen
– 1 Duschbad
– 1 Wannenbad
– Stilvoller Parkettboden
– Pflegeleichter Fliesenboden
– Garage anmietbar
– Waschkeller
– Balkon
Die Wohnung befindet sich im 1. und 2. Obergeschoss eines gepflegten Mehrfamilienhauses mit drei Wohneinheiten in Ratingen-Homberg. Die reizvolle Lage ist über eine Seitenstraße erreichbar. Dieses von Feldern und Wiesen geprägte Umfeld zählt zu der herrlichen Landschaft des Angerlandes. Die Umgebung bietet sehr viele Wanderwege und Erholungsmöglichkeiten sowie den Segelflughafen Niederberg.
Die nächste Bushaltestelle der Linie 748 ist fußläufig zwei Minuten entfernt.
In Ratingen-Homberg befinden sich Einkaufsmöglichkeiten, eine Post, Ärzte, eine Bank und verschiedene Restaurants sowie eine Grundschule und drei Kindergärten. Weitere Discounter und ein Drogeriemarkt sind in ca. fünf Autominuten erreichbar. Die umliegenden Felder, Wiesen und Wälder laden zu allerlei Freizeitaktivitäten ein. Die Verkehrsanbindungen an das Autobahnnetz (A3, A52 und A44) ist als optimal zu bezeichnen. Öffentliche Nahverkehrsmittel befördern Sie in Richtung Ratingen, Mettmann, Heiligenhaus, Velbert etc. Der Düsseldorfer Flughafen ist mit dem Auto in zehn Minuten zu erreichen.
Kirchfeldstr. 9, 40882 Ratingen–Homberg
„*“ zeigt erforderliche Felder an

Mit wenigen Daten können Sie bereits hier den besten Zinssatz und ihre individuelle Rate berechnen. Eine geprüfte Finanzierung erhöht Ihre Chancen, schnell und erfolgreich für dieses Objekt agieren zu können.
Sie sehen gerade einen Platzhalterinhalt von Standard. Um auf den eigentlichen Inhalt zuzugreifen, klicken Sie auf den Button unten. Bitte beachten Sie, dass dabei Daten an Drittanbieter weitergegeben werden.
Weitere InformationenSie müssen den Inhalt von reCAPTCHA laden, um das Formular abzuschicken. Bitte beachten Sie, dass dabei Daten mit Drittanbietern ausgetauscht werden.
Mehr InformationenSie sehen gerade einen Platzhalterinhalt von Facebook. Um auf den eigentlichen Inhalt zuzugreifen, klicken Sie auf die Schaltfläche unten. Bitte beachten Sie, dass dabei Daten an Drittanbieter weitergegeben werden.
Mehr InformationenSie müssen den Inhalt von reCAPTCHA laden, um das Formular abzuschicken. Bitte beachten Sie, dass dabei Daten mit Drittanbietern ausgetauscht werden.
Mehr InformationenSie sehen gerade einen Platzhalterinhalt von Instagram. Um auf den eigentlichen Inhalt zuzugreifen, klicken Sie auf die Schaltfläche unten. Bitte beachten Sie, dass dabei Daten an Drittanbieter weitergegeben werden.
Mehr InformationenSie sehen gerade einen Platzhalterinhalt von X. Um auf den eigentlichen Inhalt zuzugreifen, klicken Sie auf die Schaltfläche unten. Bitte beachten Sie, dass dabei Daten an Drittanbieter weitergegeben werden.
Mehr Informationen