Mikro
Makro
Ihr Ansprechpartner
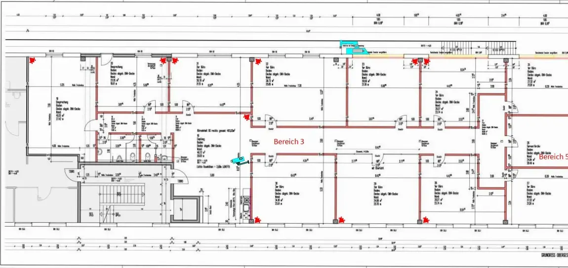
Die Gesamtfläche der noch verfügbaren Büro- und Praxisflächen beläuft sich auf 483 m².
Der beigefügte Grundriss stellt die aktuelle Aufteilung dar. Bei konkretem Mietinteresse kann die Raumaufteilung ggf. angepasst werden.
Über den Eingangsbereich erreichen Sie die offene Küche sowie den Flur, von dem alle 14 Räumlichkeiten abgehen. Hierin enthalten sind zwei separate WC- Anlagen und ein Serverraum. Die restlichen Räume können als Büro- oder auch als Praxisräume genutzt werden. Sie sind klimatisiert, modern und repräsentativ.
Ausstattung:
+ Ausreichend PKW-Stellplätze direkt vor dem Gebäude
+ Aufzug
+ Gepflegte Räumlichkeiten
+ Provisionsfrei für den Mieter
+ Klimaanlage
+ Alarmanlage
+ repräsentative Einbauküche
+ Wärmeversorgung über zentrale Luft-Wasser-Wärmepumpenanlage, Abdeckung der Leistungsspitzen durch zugeschaltete Gas-Brennwertheizung
+ Beheizung über thermostatgesteuerte Fußbodenheizung
+ Lüftungsanlagen für alle innenliegenden Räume nach DIN, Arbeitsstättenverordnung und den neusten Regeln der Technik
+ Bodenbelag: Teppichboden
+ Innenwände weiß
+ Rasterakustikabhangdecke
+ Netzwerkverkabelung
Gewerbegebiet Im Mühlenbruch in Königswinter – Oberdollendorf.
Unmittelbar an der Ortsgrenze zu Bonn-Oberkassel, direkte Autobahnanbindung zur B42. Öffentliche Verkehrsmittel sind fußläufig erreichbar.
Neben einer Tankstelle, einem Baumarkt und diverser Einzelhandelsflächen gibt es in diesem Gewerbegebiet moderne Büro- und Ärztehäuser.
Die monatliche Betriebskostenvorauszahlung beträgt inkl. Heizkosten 4,- pro m².
Kostenübersicht Büros: Nettokaltmiete: 11,- / m² + Betriebskostenvorauszahlung inkl. Heizkosten: 4,- / m² = Zwischensumme: 15,- / m² + Mehrwertsteuer: 2,85 / m² = Bruttowarmmiete inkl. MwSt. 17,85 / m².
Die Höhe der Kaution ist von Fall zu Fall mit dem Eigentümer abzustimmen. Bezüglich der Form der Kaution (z. B. Bankbürgschaft) bitten wir um Rücksprache.
53639 Königswinter
„*“ zeigt erforderliche Felder an
Mit wenigen Daten können Sie bereits hier den besten Zinssatz und ihre individuelle Rate berechnen. Eine geprüfte Finanzierung erhöht Ihre Chancen, schnell und erfolgreich für dieses Objekt agieren zu können.
Sie sehen gerade einen Platzhalterinhalt von Standard. Um auf den eigentlichen Inhalt zuzugreifen, klicken Sie auf den Button unten. Bitte beachten Sie, dass dabei Daten an Drittanbieter weitergegeben werden.
Weitere InformationenSie müssen den Inhalt von reCAPTCHA laden, um das Formular abzuschicken. Bitte beachten Sie, dass dabei Daten mit Drittanbietern ausgetauscht werden.
Mehr InformationenSie sehen gerade einen Platzhalterinhalt von Facebook. Um auf den eigentlichen Inhalt zuzugreifen, klicken Sie auf die Schaltfläche unten. Bitte beachten Sie, dass dabei Daten an Drittanbieter weitergegeben werden.
Mehr InformationenSie müssen den Inhalt von reCAPTCHA laden, um das Formular abzuschicken. Bitte beachten Sie, dass dabei Daten mit Drittanbietern ausgetauscht werden.
Mehr InformationenSie sehen gerade einen Platzhalterinhalt von Instagram. Um auf den eigentlichen Inhalt zuzugreifen, klicken Sie auf die Schaltfläche unten. Bitte beachten Sie, dass dabei Daten an Drittanbieter weitergegeben werden.
Mehr InformationenSie sehen gerade einen Platzhalterinhalt von X. Um auf den eigentlichen Inhalt zuzugreifen, klicken Sie auf die Schaltfläche unten. Bitte beachten Sie, dass dabei Daten an Drittanbieter weitergegeben werden.
Mehr Informationen