Grundriss
Ihr Ansprechpartner
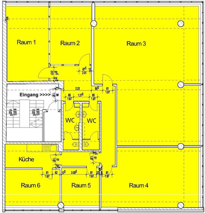
Büro-/ Praxisfläche 3. OG: ca. 227,15m² 6 Räume,Küche, WC
Sehr helle, gepflegte Räume, teilweise Abtrennung mit Echtglaselementen, Glasfasertapete, 4 Einzelbüros, 1 Großraumbüro, Besprechung, Teppichfußbodenoberbelag, abgehängte Kassettendecke mit Beleuchtung, DV-Verkabelung, Server-/Kopierraum, Küche, D+H WC, Aufzug, Rauchwarnmelder, Gegensprechanlage, Fernwärmeheizung.
Die Immobilie befindet sich direkt in der Dortmunder City in unmittelbarer Nähe zum Westenhellweg. Namhafte Unternehmen wie Deichmann, Galerie Dortmund, Müller, dm, Vodafone, Kanzlei Rüschenbeck, etc. sind in unmittelbarer Nachbarschaft gelegen. Banken, Rechtsanwälte / Notare, Unternehmensvertretung, sind in direkter Umgebung tätig. Öffentliche Verkehrsmitte wie die U-Bahnlinien U41, U42, U45, U46, U47, U49 und die Bushaltestelle Hansastraße sind fußläufig schnell erreichbar.
44137 Dortmund–Mitte
„*“ zeigt erforderliche Felder an
Mit wenigen Daten können Sie bereits hier den besten Zinssatz und ihre individuelle Rate berechnen. Eine geprüfte Finanzierung erhöht Ihre Chancen, schnell und erfolgreich für dieses Objekt agieren zu können.
Sie sehen gerade einen Platzhalterinhalt von Standard. Um auf den eigentlichen Inhalt zuzugreifen, klicken Sie auf den Button unten. Bitte beachten Sie, dass dabei Daten an Drittanbieter weitergegeben werden.
Weitere InformationenSie müssen den Inhalt von reCAPTCHA laden, um das Formular abzuschicken. Bitte beachten Sie, dass dabei Daten mit Drittanbietern ausgetauscht werden.
Mehr InformationenSie sehen gerade einen Platzhalterinhalt von Facebook. Um auf den eigentlichen Inhalt zuzugreifen, klicken Sie auf die Schaltfläche unten. Bitte beachten Sie, dass dabei Daten an Drittanbieter weitergegeben werden.
Mehr InformationenSie müssen den Inhalt von reCAPTCHA laden, um das Formular abzuschicken. Bitte beachten Sie, dass dabei Daten mit Drittanbietern ausgetauscht werden.
Mehr InformationenSie sehen gerade einen Platzhalterinhalt von Instagram. Um auf den eigentlichen Inhalt zuzugreifen, klicken Sie auf die Schaltfläche unten. Bitte beachten Sie, dass dabei Daten an Drittanbieter weitergegeben werden.
Mehr InformationenSie sehen gerade einen Platzhalterinhalt von X. Um auf den eigentlichen Inhalt zuzugreifen, klicken Sie auf die Schaltfläche unten. Bitte beachten Sie, dass dabei Daten an Drittanbieter weitergegeben werden.
Mehr Informationen