1
2
3
4
5
6
7
8
9
10
11
12 Grundriss 1 OG
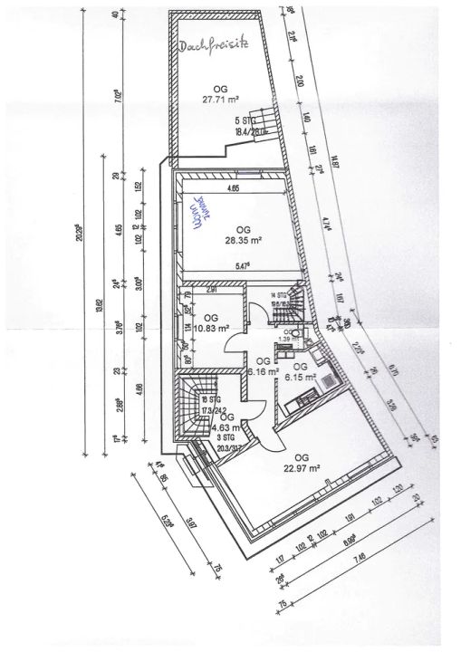
13 Grundriss DG
Ihr Ansprechpartner
Diese elegante Wohnung im ersten Obergeschoss eines Zweifamilienhauses verfügt über eine Wohnfläche von 80 m² und ist zusätzlich durch zwei ausgebaute Räume auf dem Dachboden mit einer Nutzfläche von ca. 32 m² erweitert. Das geräumige Wohnzimmer, das Herz der Wohnung, führt hinaus auf eine großzügige Dachterrasse, die einen herrlichen Freiraum für Erholung und Unterhaltung unter freiem Himmel bereitstellt.
Das Schlafzimmer ist gemütlich und bietet genügend Platz für eine persönliche Einrichtung. Die Küche ist funktional gestaltet und bereit für die individuelle Ausstattung nach eigenem Geschmack. Das im Jahr 2017 sanierte Bad zeigt sich in einem modernen, ansprechenden Stil und das zusätzliche Gäste-WC erhöht den Komfort für Bewohner und Besucher gleichermaßen.
Ein eigener Kelleranteil sorgt für zusätzliche Lagermöglichkeiten und trägt zur Organisation des Wohnraums bei. Ein weiteres Highlight dieser Immobilie ist die Doppelgarage, die bequemen Platz für Fahrzeuge und weiteren Stauraum bereitstellt. Diese Wohnung vereint praktische Wohnlichkeit mit zusätzlichem Platzangebot und ist ideal für diejenigen, die Wert auf Komfort, Stil und Funktionalität legen.
Ihre künftige Wohnung befindet sich in einer ruhigen und doch zentralen Lage von Grevenbroich, einer Stadt, die eine hohe Lebensqualität und eine hervorragende Infrastruktur bietet. Die Nähe zu zahlreichen Einkaufsmöglichkeiten, Cafés und Restaurants macht den Alltag besonders komfortabel und bietet eine Vielfalt an kulinarischen und shopping Erlebnissen direkt vor der Haustür.
Für Familien ist diese Lage ideal, da mehrere Bildungseinrichtungen wie Schulen und Kindergärten leicht erreichbar sind. Die ausgezeichnete Verkehrsanbindung, einschließlich Zugang zu öffentlichen Verkehrsmitteln, erleichtert das Pendeln und stellt sicher, dass andere Stadtteile sowie die umliegende Natur schnell und einfach erreicht werden können.
Das Angebot wird durch die Nähe zu Grünflächen und Parks abgerundet, die reichlich Möglichkeiten für Freizeitaktivitäten im Freien bieten. Diese Wohngegend kombiniert urbanes Leben mit der Ruhe einer gut etablierten Gemeinschaft, was sie zu einem begehrten Wohnort macht.
41516 Grevenbroich
„*“ zeigt erforderliche Felder an
Mit wenigen Daten können Sie bereits hier den besten Zinssatz und ihre individuelle Rate berechnen. Eine geprüfte Finanzierung erhöht Ihre Chancen, schnell und erfolgreich für dieses Objekt agieren zu können.
Sie sehen gerade einen Platzhalterinhalt von Standard. Um auf den eigentlichen Inhalt zuzugreifen, klicken Sie auf den Button unten. Bitte beachten Sie, dass dabei Daten an Drittanbieter weitergegeben werden.
Weitere InformationenSie müssen den Inhalt von reCAPTCHA laden, um das Formular abzuschicken. Bitte beachten Sie, dass dabei Daten mit Drittanbietern ausgetauscht werden.
Mehr InformationenSie sehen gerade einen Platzhalterinhalt von Facebook. Um auf den eigentlichen Inhalt zuzugreifen, klicken Sie auf die Schaltfläche unten. Bitte beachten Sie, dass dabei Daten an Drittanbieter weitergegeben werden.
Mehr InformationenSie müssen den Inhalt von reCAPTCHA laden, um das Formular abzuschicken. Bitte beachten Sie, dass dabei Daten mit Drittanbietern ausgetauscht werden.
Mehr InformationenSie sehen gerade einen Platzhalterinhalt von Instagram. Um auf den eigentlichen Inhalt zuzugreifen, klicken Sie auf die Schaltfläche unten. Bitte beachten Sie, dass dabei Daten an Drittanbieter weitergegeben werden.
Mehr InformationenSie sehen gerade einen Platzhalterinhalt von X. Um auf den eigentlichen Inhalt zuzugreifen, klicken Sie auf die Schaltfläche unten. Bitte beachten Sie, dass dabei Daten an Drittanbieter weitergegeben werden.
Mehr Informationen