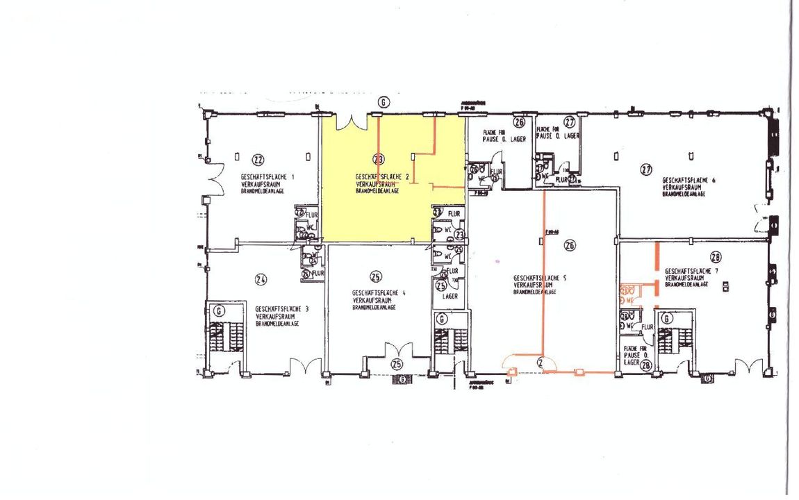
Grundriss
Ihr Ansprechpartner
Laden: ca. 98,00m² NfL. 3 Räume, Küche, WC
Tiefgaragenstellplatz
Hinweis: Das Ladenlokal ist bis zum 30.06.2026 vermietet.
Mieteinnahmen EUR 799,- Nettokaltmiete monatlich zzgl. Nebenkosten.
Energieausweis in Vorbereitung!!!
Helles, modernes Ladenlokal, Vinyl-Fußbodenoberbelag, fußbodentiefe Fenster, Wartebereich mit Empfang, 2 Behandlungsräume, Küche, WC-Anlage, abgehängte Kassettendecke mit integrierter Beleuchtung, Rauchwarnmelder, Kunststofffenster mit Isolierverglasung, ebenerdiger Zugang, Tiefgenstellplatz.
Die Immobilie befindet sich in zentraler Lage von Witten-Herbede mit hervorragender Anbindung an die A43 und A1. Das Objekt selbst ist eine klassische Mischimmobilie mit Gewerbe und Wohnungen in dem u. a. Versicherungsmakler und eine Fahrschule ansässig sind. In direkter Umgebung der Nachbarschaft befinden sich namhafte Ankermieter wie die Volksbank, Netto, EDEKA, Action u. v. a.. Die Mischung aus Wohnen und Gewerbe ist gewachsen und stark ausgeprägt, sodass eine vielfältige Nutzung des Ladenlokals möglich ist.
Öffentliche Verkehrsmittel, die Buslinien SB 38, 67, Linie 320, 374 und 375 und der NE 17 halten direkt am Objekt. Zudem sorgt die umliegende Einzelhandelsstruktur für eine gute Parksituation.
Witten-Herbede gilt als gefragter Stadtteil mit hoher Kaufkraft und einer gewachsenen Struktur.
58456 Witten–Witten-Herbede
„*“ zeigt erforderliche Felder an
Mit wenigen Daten können Sie bereits hier den besten Zinssatz und ihre individuelle Rate berechnen. Eine geprüfte Finanzierung erhöht Ihre Chancen, schnell und erfolgreich für dieses Objekt agieren zu können.
Sie sehen gerade einen Platzhalterinhalt von Standard. Um auf den eigentlichen Inhalt zuzugreifen, klicken Sie auf den Button unten. Bitte beachten Sie, dass dabei Daten an Drittanbieter weitergegeben werden.
Weitere InformationenSie müssen den Inhalt von reCAPTCHA laden, um das Formular abzuschicken. Bitte beachten Sie, dass dabei Daten mit Drittanbietern ausgetauscht werden.
Mehr InformationenSie sehen gerade einen Platzhalterinhalt von Facebook. Um auf den eigentlichen Inhalt zuzugreifen, klicken Sie auf die Schaltfläche unten. Bitte beachten Sie, dass dabei Daten an Drittanbieter weitergegeben werden.
Mehr InformationenSie müssen den Inhalt von reCAPTCHA laden, um das Formular abzuschicken. Bitte beachten Sie, dass dabei Daten mit Drittanbietern ausgetauscht werden.
Mehr InformationenSie sehen gerade einen Platzhalterinhalt von Instagram. Um auf den eigentlichen Inhalt zuzugreifen, klicken Sie auf die Schaltfläche unten. Bitte beachten Sie, dass dabei Daten an Drittanbieter weitergegeben werden.
Mehr InformationenSie sehen gerade einen Platzhalterinhalt von X. Um auf den eigentlichen Inhalt zuzugreifen, klicken Sie auf die Schaltfläche unten. Bitte beachten Sie, dass dabei Daten an Drittanbieter weitergegeben werden.
Mehr Informationen