Hausansicht
Herrlicher Ausblick v
Gepflegter Hauszugang
Wohnungsdiele
Wohnungsdiele
Der praktische Abstellraum
Die vorhandene Einbauküche
Das Schlafzimmer
Das Wohn-/Esszimmer
Die Loggia
Von der Loggia in das WZ
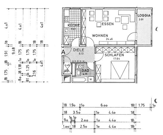
Grundriss
Zufahrt zur Tiefgarage
Ihr Ansprechpartner
Suchen Sie eine barrierearme Zweizimmerwohnung in Hagen-Helfe? Dann ist diese Immobilie genau das Richtige für Sie.
Die Wohnung befindet sich in einem gepflegten Hochhaus, das über einen Aufzug und einen Tiefgaragenstellplatz verfügt.
Zwei Aufzüge ermöglichen Ihnen einen stufenlosen Zugang zur Wohnung im 14. Obergeschoss. In der Wohnung angekommen sind alle Zimmer über die Diele, die über einen praktischen Abstellraum verfügt, zugänglich.
Direkt links befindet sich die Küche, ausgestattet mit einer modernen Einbauküche, die im Kaufpreis enthalten ist.
An die Küche angrenzend liegt das Wohn-/ und Esszimmer mit einer Fläche von ca. 24 m². Vom Wohn-Esszimmer aus haben Sie einen Zugang auf die ca. 9 m² großen Loggia. Dank der Lage im 14. Obergeschoss genießen Sie einen beeindruckenden Weitblick über den Westen von Hagen und können aufgrund der Ausrichtung auch die Sonne bis in die Abendstunden genießen.
Auch das Schlafzimmer bietet mit ca. 18 m² ausreichend Platz. Das innenliegende Badezimmer mit großer Dusche wurde vor wenigen Jahren erneuert. Zudem können Sie hier eine Waschmaschine und einen Trockner anschließen.
Ein Kellerraum, ein Fahrradkeller sowie ein Tiefgaragenstellplatz runden dieses attraktive Angebot ab.
Diese Immobilie eignet sich sowohl für Jung und Alt zur Selbstnutzung als auch für Kapitalanleger. Die Lage in Hagen- Helfe ist bei Eigennutzern und Mietern gleichermaßen stets sehr begehrt.
Dachform: Flachdach (erneuert ca. 2014)
Fassade: Gedämmte Vorhangfassade, erneuert ca. vor 6 Jahren
Hauseingangstür: Barrierefreie Schwenktüren, öffnen sich über Bewegungsmelder
Etagenlage: 14. Etage
Aufzug: Ja, zwei
Fenster: Kunststofffenster, Balkontür bereits erneuert
Rollläden: Nein
Wohnungstür: Holz
Gegensprechanlage: Ja
Zimmertüren: Holz, tlw. mit Glaseinsatz
Zargen: Stahl, weiß
Bodenbeläge: Wohnräume Laminat, Küche PVC, Badezimmer modern gefliest
Badezimmer: Modernisiertes Duschbad
Gäste- WC: Nein
Loggia/ Balkon: Loggia mit Westausrichtung und Weitblick, ca. 9m² Grundfläche
Heizungsart: Fernwärme
Wasseruhr: Eigene Wasseruhr im Bad
Waschraum: Nein, Anschluss für Waschmaschine und Trockner im Badezimmer
Trockenraum: Ja
Garage/ Stellplatz: Tiefgargenstellplatz im Kaufpreis enthalten
Hausgeld: 342 EUR/ Monat darin enthalten sind die Kosten für Heizung, Wasser, Abwasser, Winterdienst, Niederschlagswasser, Aufzug, städt. Straßenreinigung und Winterdienst, Müllabfuhr, Garten-/ Außenanlagenpflege, Hausreinigung, objektbezogener Winterdienst, Hausmeister, Allgemeinstrom, Versicherungen, Reparaturen, Wartung Kontoführung, Verwaltung und Rücklage,
Grundsteuer: 346 EUR / Jahr
Sonstiges: Die vorhandene Einbauküche ist ebenfalls im Kaufpreis enthalten. Im Bereich der Wohnungsdiele gibt es einen praktischen Abstellraum.
Hagen-Helfe ist ein gefragter Stadtteil in Hagen, der durch seine hervorragende infrastrukturelle Anbindung überzeugt. Die schnelle Erreichbarkeit der Autobahnen A1 und A45 ermöglicht unkomplizierte Verbindungen in die umliegenden Städte. Der Stadtteil an sich verfügt über ein kleines, fußläufig erreichbares Zentrum, das eine Auswahl an Restaurants bietet. Kitas, Grundschulen sowie eine Gesamtschule sind bequem zu Fuß erreichbar. Auch die Anbindung an den öffentlichen Nahverkehr ist sehr gut und fußläufig erreichbar.
Der Energieausweis wird den Interessenten bei der Besichtigung vorgelegt und in Kopie übergeben.
Energieausweis: Verbrauchsausweis
gültig von: 08.01.2020
Energieträger/ Befeuerung: Gas (Fernwärme)
Endenergieverbrauch Wärme: 92 kWh/(m²a)
Energieeffizienzklasse: C
Baujahr: 1978
58099 Hagen–Hagen- Helfe