Wohn-/Essbereich
Badezimmer
Küche
Schlafzimmer
Schlafzimmer
Balkon
Ihr Ansprechpartner
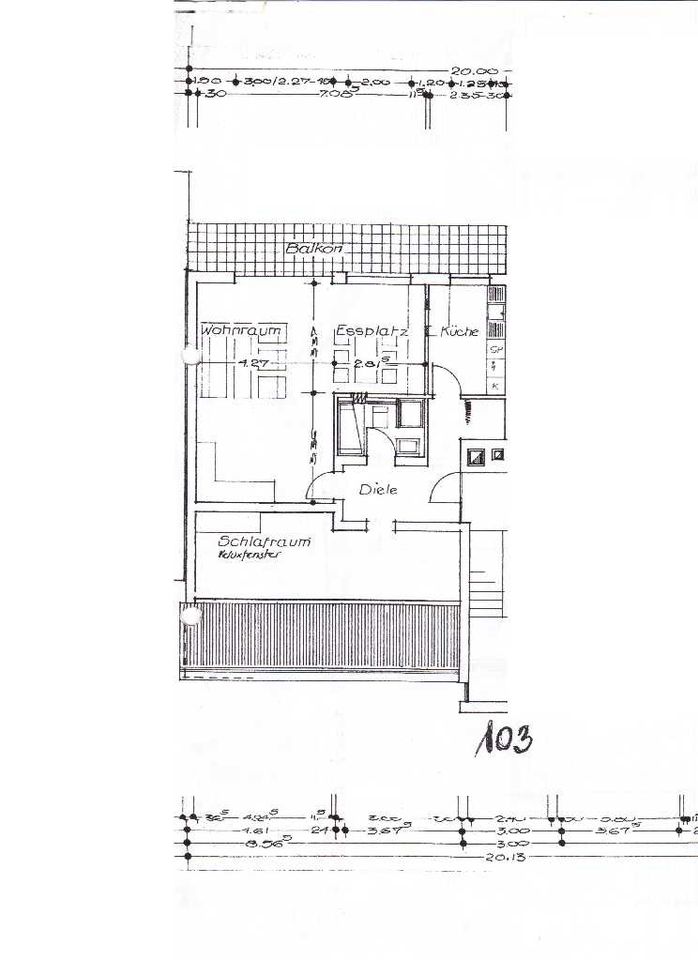
Diese modern gestaltete 2-Zimmer-Wohnung, befindet sich im 2. OG eines gepflegten 6-Parteienhauses in Ratingen-Tiefenbroich.
Die Wohnung wurde 2014 umfassend renoviert.
Auf ca. 80 m² finden Sie einen großzügigen Wohn-Essbereich mit kleiner Durchreiche zur Küche, ein kleines, aber gemütliches Schlafzimmer, ein modernes Badezimmer mit Wanne und Dusche, sowie die separate Küche, die bereits mit einer Einbauküche bestückt ist. Der Balkon, der mit einer Markise ausgestattet ist, lässt Sie schöne Stunden an der frischen Luft genießen.
Ein eigener Kellerraum, ein Fahrradkeller sowie ein Wasch-/Trockenraum stehen Ihnen ebenfalls zur Verfügung.
Kostenaufstellung: 675,- EUR Kaltmiete zzgl. 360,-EUR Nebenkosten= 1.035,- EUR Gesamtmiete
Spricht Sie das Objekt an, Sie haben die Lage für sich geprüft und Sie erfüllen die folgenden Eckpunkte, dann kontaktieren Sie uns gerne und versenden eine schriftliche
BITTE LESEN:
– Ein eigenes, solides Einkommen wird vorausgesetzt
– Die Wohnung kann mit max. 2 Personen bezogen werden
– Eine Mindestmietlaufzeit von 2 Jahren ist Voraussetzung
Energieausweis: Verbrauchsausweis gültig von: 15.10.2018, Endenergieverbrauch Wärme: 139 kWh/(m²a)
Wesentliche Energieträger Heizung: Befeuerung Oel, Energieeffizienzklasse: E, Baujahr: 1970
Hier einige Ausstattungsmerkmale aufgeführt:
– Einbauküche vorhanden
– Stilvoller Vinylboden
– Pflegeleichter Fliesenboden
– Wände weiß gestrichen
– Balkon
– Markise
– Bad mit Wanne und Dusche
– Kellerraum
– Fahrradkeller
– Wasch-/Trockenraum
Die Wohnung befindet sich in einem gepflegten Mehrparteienhaus Ratingen-Tiefenbroich. Die nähere Umgebung ist geprägt durch eine lockere Wohnbebauung. Dieser mehrheitlich von Ein- und Mehrfamilienhäusern geprägten Stadtteil liegt im Nordwesten von Ratingen. Den Norden und Süden von Tiefenbroich trennt der Angerbach. Sie haben hervorragende Autobahnanschlüsse zur A52 Essen-Düsseldorf / Roermond (NL) und A44 Ratingen-Mönchengladbach. Der Ratinger Stadtteil Tiefenbroich liegt im näheren Einzugsbereich des Düsseldorfer Flughafens. Tiefenbroich verfügt über eine gute Infrastruktur mit allen notwendigen Geschäften. Schulen und Kindergärten sind in ausreichender Zahl vorhanden. Ratingen – die größte Stadt im Kreis Mettmann – ist durch ihre günstige Lage zwischen den Großstädten Essen und Düsseldorf, der hervoragenden Verkehrsanbindungen, der Nähe zum Flughafen Düsseldorf und der ausgeprägten Infrastruktur, ein attraktiver Wohn- und Gewerbestandort. Sämtliche Schulformen, Kindergärten, Tagesstätten etc. sind in Ratingen in ausreichender Anzahl vorhanden. Düsseldorf – die Landeshauptstadt von NRW – grenzt direkt an Ratingen. Die Autobahnen A3 Köln-Oberhausen, die A44 Ratingen-Mönchengladbach und die Autobahn A52 Essen-Düsseldorf / Roermond (NL) verknüpfen sich im Raum Ratingen zu einem Dreieck. Das mittelalterliche Stadtzentrum, der Marktplatz mit denkmalgeschützten Gebäuden, die Stadtmauer, die Stadttore, die Wasserburg, das Schloss Linnep, das Schloss Landsberg und die erste mechanische Baumwollspinnerei Cromford, dokumentieren die historische Kultur und sind attraktive Sehenswürdigkeiten. Das Kulturangebot mit Museen, Veranstaltungen in der Stadthalle, im Stadttheater, auf der Freilichtbühne Blauer See und am Grünen See ist äußerst vielfältig. Das Freizeitangebot mit Sportplätzen, Eislaufhalle, Hallen- und Freibad ist sehr groß. Die umfangreichen Wälder und Seen sind die grüne Lunge, der ruhende Pol und beliebtes Naherholungsgebiet der Ratinger Bevölkerung.
40880 Ratingen–Tiefenbroich
„*“ zeigt erforderliche Felder an

Mit wenigen Daten können Sie bereits hier den besten Zinssatz und ihre individuelle Rate berechnen. Eine geprüfte Finanzierung erhöht Ihre Chancen, schnell und erfolgreich für dieses Objekt agieren zu können.
Klicken Sie auf den unteren Button, um den Inhalt von www.ehyp.de zu laden.