Ihr Ansprechpartner
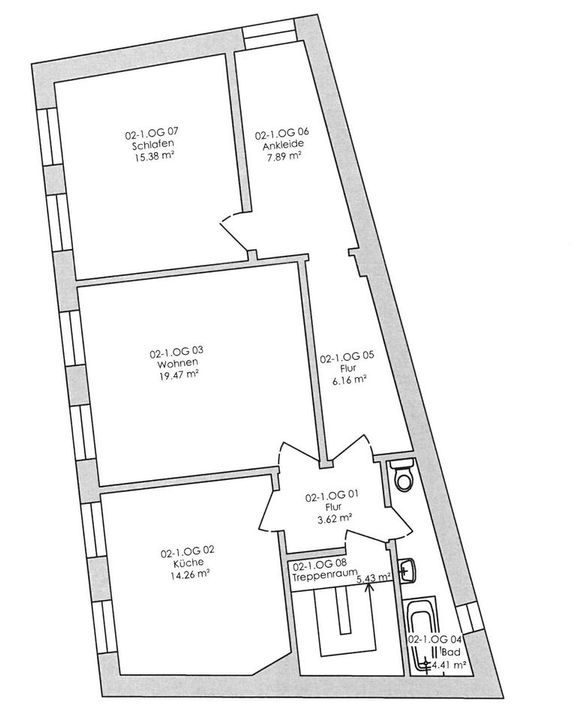
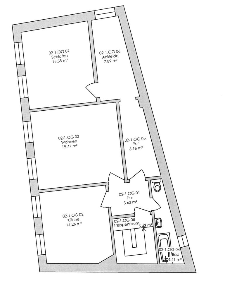
Die Wohnung verfügt über eine Fläche von ca. 70 m² und ist aufgeteilt in eine großzügige Küche, Wohnzimmer, Schlafzimmer und einem kleinen Durchgangszimmer, das als Arbeitszimmer genutzt werden kann. Der Holzboden sorgt für eine wohnliche Atmosphäre. Das Tageslichbad verfügt über eine Badewanne. Die Wohnung wird über eine Gas-Etagenheizung beheizt
Die Wohnung befindet sich in zentraler Innenstadtlage von Werl. Einrichtungen des täglichen Bedarfs wie Einkaufsmöglichkeiten, Ärzte und Gastronomie befinden sich in unmittelbarer Nähe. Der Bahnhof liegt ca. 800 m entfernt. Bis zu den Autobahnen A44 (Kassel – Ruhrgebiet) und A445 (Werl – Bestwig) sind es ca. 2,5 km Fahrtstrecke.
Wir bitten sich bei Interesse mit einer s c h r i f t l i c h e n Anfrage über unsere Homepage oder das Internetportal an uns zu wenden. Bitte beachten Sie, dass nur vollständige ausgefüllte Kontaktanfragen bearbeitet werden können (Name, Anschrift und Rufnummer). Wir senden Ihnen dann umgehend ein Exposé per E-Mail zu.
59457 Werl
„*“ zeigt erforderliche Felder an
Mit wenigen Daten können Sie bereits hier den besten Zinssatz und ihre individuelle Rate berechnen. Eine geprüfte Finanzierung erhöht Ihre Chancen, schnell und erfolgreich für dieses Objekt agieren zu können.
Sie sehen gerade einen Platzhalterinhalt von Standard. Um auf den eigentlichen Inhalt zuzugreifen, klicken Sie auf den Button unten. Bitte beachten Sie, dass dabei Daten an Drittanbieter weitergegeben werden.
Weitere InformationenSie müssen den Inhalt von reCAPTCHA laden, um das Formular abzuschicken. Bitte beachten Sie, dass dabei Daten mit Drittanbietern ausgetauscht werden.
Mehr InformationenSie sehen gerade einen Platzhalterinhalt von Facebook. Um auf den eigentlichen Inhalt zuzugreifen, klicken Sie auf die Schaltfläche unten. Bitte beachten Sie, dass dabei Daten an Drittanbieter weitergegeben werden.
Mehr InformationenSie müssen den Inhalt von reCAPTCHA laden, um das Formular abzuschicken. Bitte beachten Sie, dass dabei Daten mit Drittanbietern ausgetauscht werden.
Mehr InformationenSie sehen gerade einen Platzhalterinhalt von Instagram. Um auf den eigentlichen Inhalt zuzugreifen, klicken Sie auf die Schaltfläche unten. Bitte beachten Sie, dass dabei Daten an Drittanbieter weitergegeben werden.
Mehr InformationenSie sehen gerade einen Platzhalterinhalt von X. Um auf den eigentlichen Inhalt zuzugreifen, klicken Sie auf die Schaltfläche unten. Bitte beachten Sie, dass dabei Daten an Drittanbieter weitergegeben werden.
Mehr Informationen